CAFE STYLE
リフォーム費用
650~750万円
Outline
リフォーム内容
全室床・壁クロス張り替え、建具新調、和室畳張り替え、ユニットバス新調、洗浄機能付きトイレ新調 洗面化粧台新調、WIC新設、システムキッチン新調、家具設置
部屋概要
築年数:1989年10月
家族構成:family
竣工年月:2020年9月
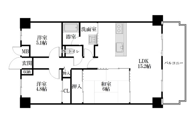
間取り:3LDK
広さ:69.30㎡
Room
施工事例一覧ページへ
前のページへ戻る
明石市周辺で、戸建・マンション・
土地・不動産情報をお探しなら
エバーハウジングでは、明石・西明石・大久保・魚住・二見・加古川・播磨・稲美・神戸の各エリアで、戸建・マンション・土地・不動産情報をお探しの方を対象に、住まいに関する情報をご案内しております。不動産のことはもちろん、リフォーム・リノベーションなど、暮らしに関することなら何なりと当社へご相談・お問い合わせください。
お問い合わせ・資料請求はこちら
© ever housing.
Fudousan Plugin Ver.9.9.9